IN PROGRESS | EDMONTON INFILL

LOCATION

Edmonton AB

COMPLETION DATE

2026

INTERIOR DESIGN

Custom Single-Family

PROJECT TYPE

Lakeview Homes

BUILDER

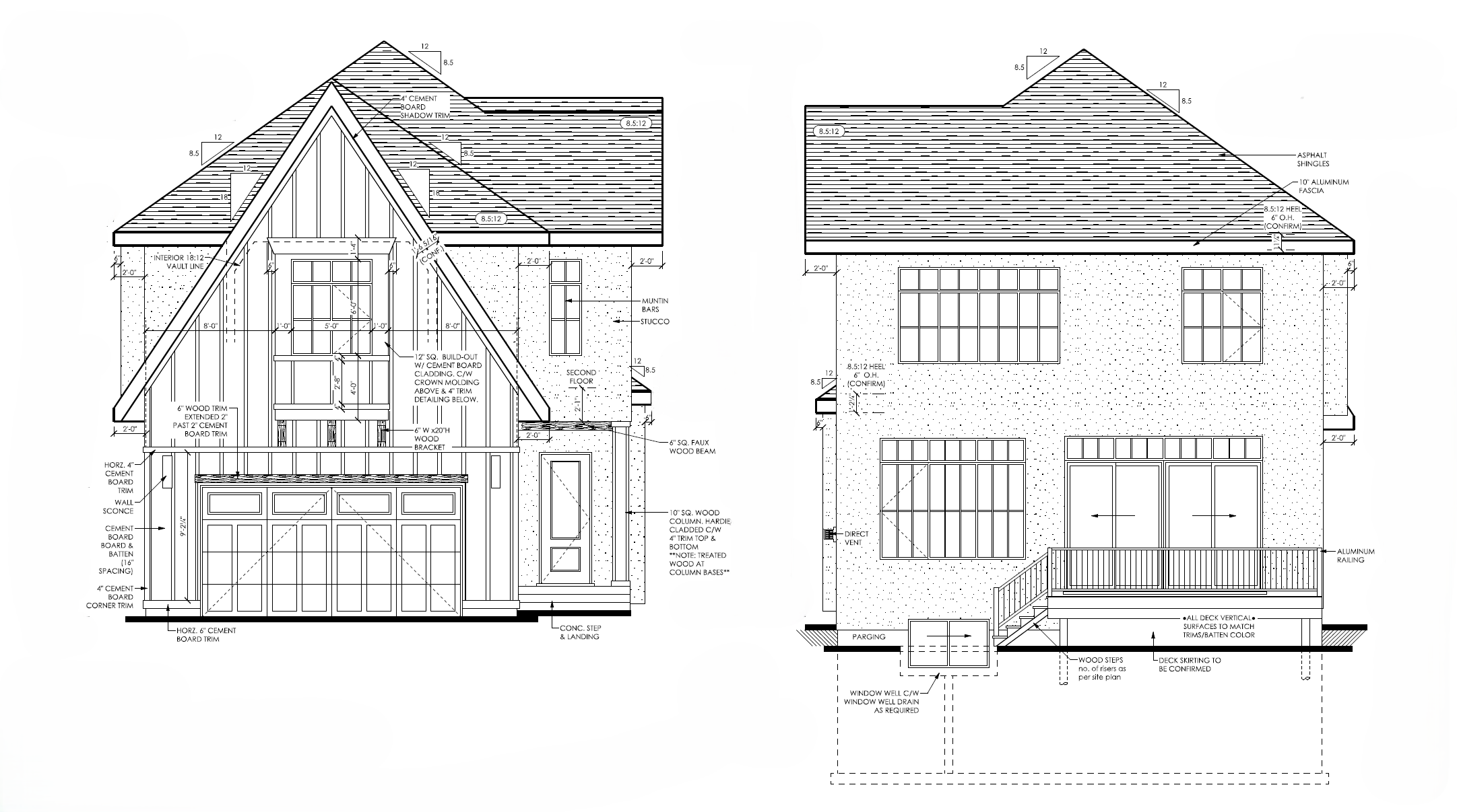
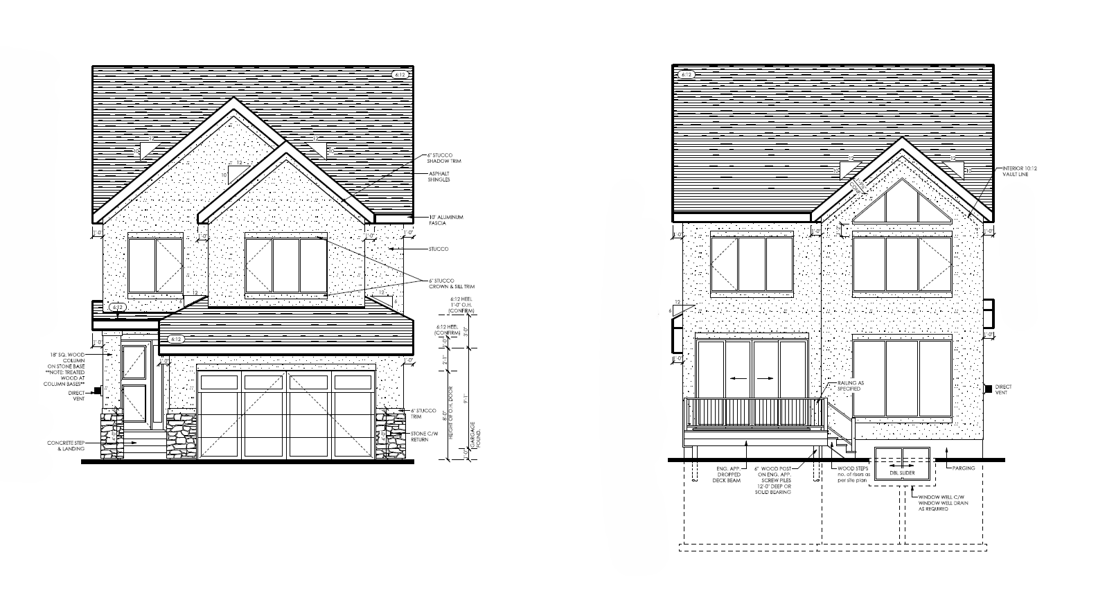
Interior design for two custom single-family homes in Edmonton, AB, on a newly split infill lot. The scope includes concept development, detailed interior design, and full construction documentation for both homes. Close coordination with the client, builder and project consultants ensures a seamless, cohesive design, from concept through construction.

Maise Design - Edmonton Infill Project - Custom Home
Maise Design - Edmonton Infill Project - Custom Home
Previous
Previous

In Progress | Middleton Mountain