NEXII

LOCATION

Paradise CA USA

COMPLETION DATE

Prototypes

WEBSITE

INTERIOR DESIGN

Prefab Manufactured Housing

PROJECT TYPE

NEXII Prototype Housing | Disaster Relief Units

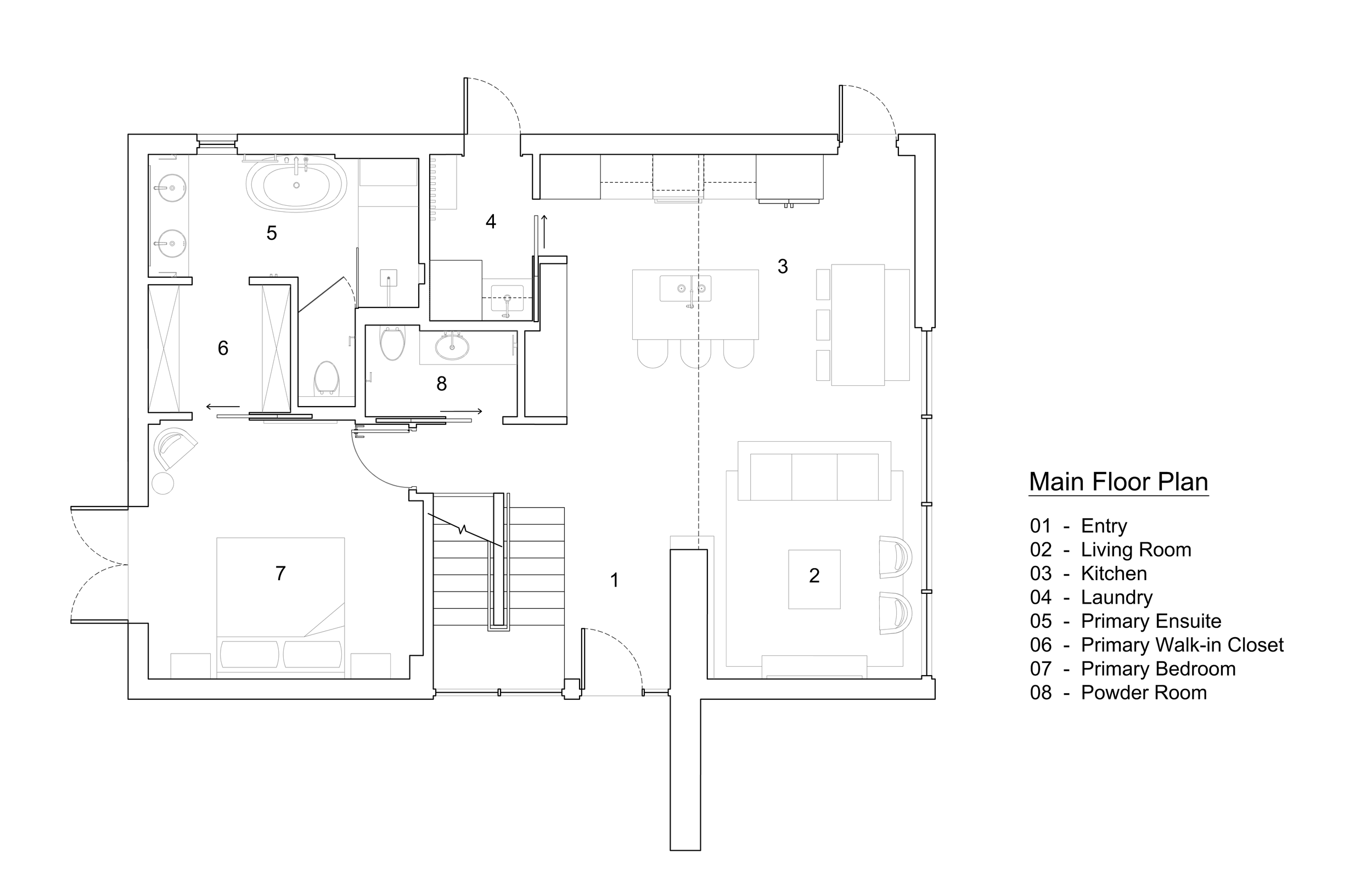
In collaboration with NEXII Building Solutions, we designed interiors and layouts for their prototype prefabricated, fire-resistant housing units. These were developed in response to the urgent need for resilient housing in disaster-affected communities, such as Paradise, California, following the devastating 2018 Camp Fire.

The Camp Fire was the deadliest and most destructive wildfire in California’s history, burning 153,336 acres, destroying nearly 20,000 homes and businesses, and displacing more than 50,000 people. With 85 lives lost and damages exceeding US $16.5 billion, the need for safe, rapidly deployable housing solutions was critical.

Working within the parameters of NEXII’s lightweight, durable, and climate-resistant panel system, we created modern, functional floor plans and interior concepts that demonstrated how modular, flat-packed units could be transformed into livable, welcoming homes.

Our design approach balanced the technical demands of prefabrication with the human need for comfort and connection, positioning the prototypes not only as rapid-response shelters, but as a forward-thinking vision for sustainable, adaptable housing.

Previous
Previous

Keswick On The River

Next
Next

In Progress | The Royal Kelowna